İstanbul Maltepe +90 (536) 861 94 74 Pzt-Ctesi: 08:00 - 18:00
Bizi Takip Edin:
Autora
  • ANASAYFA
  • KURUMSAL
    • BİZ KİMİZ
    • VİZYON & MİSYON
  • FAALİYET ALANLARIMIZ
  • PROJELERİMİZ
  • İLETİŞİM
AnaSayfa | ProjeDetay

ProjeDetay

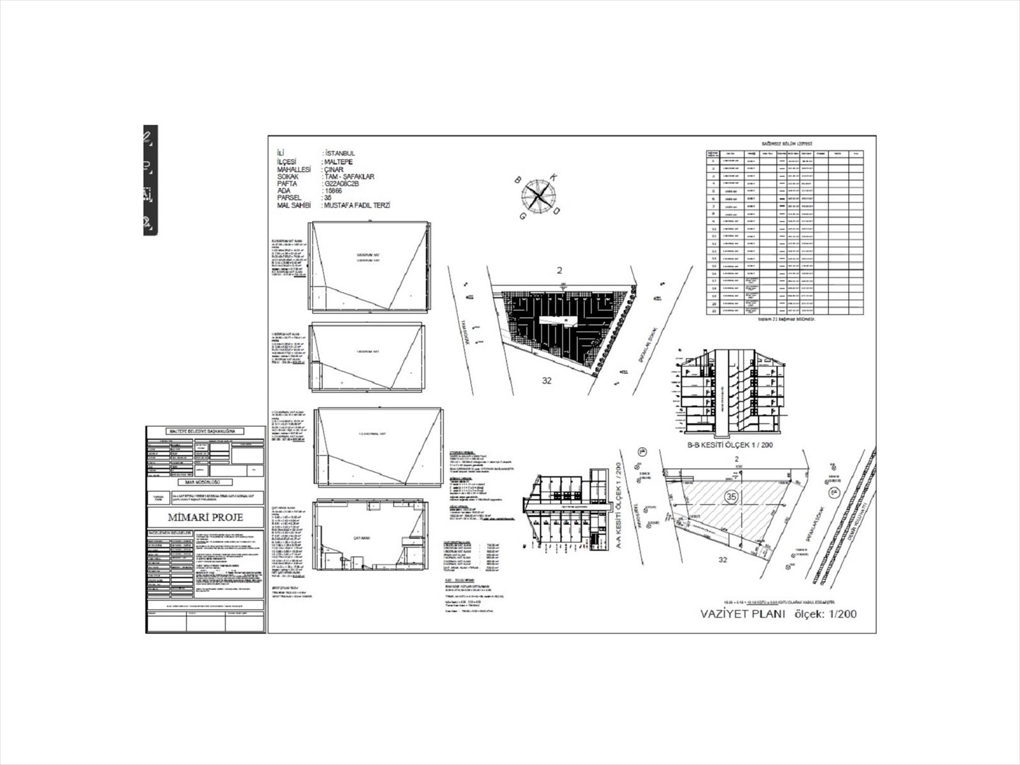
ELİTE YALI 4

  • Firma Elite La Maison
  • Konut Sayısı 21
  • Yüz Ölmü 5307 m2
  • Tamamlanan Yıl 2024
  • Yeşil Alan 500 m2
  • Tag Küçükyalı,Maltepe, İstanbul Anadolu yakası

BRÖŞÜR & KROKİ

brosur.PDF
Kroki.jpg
Image
Image
Image
Image
Image
Image
Image
Image
Image
PROJE ACIKLAMA

Elite La Maison 

Küçükyalı sahilde bulunduğu semtin ismini aldığı yalıların yanıbaşında istanbul'un en büyük şehir parkına ,sahil ve denize birici parselde yaşayacağınız elite la maison sunduğu yaşam konforuyla lüksü ve zenginliği buluşturuyor... 

Elite la maison 21 ayrı yaşam konforu sunmaktadır.3+1 bahçe villaları ile elite la maison kendine özel bahçe kullanım avantajlarına sahip olup ekstra yaşam zenginliği sağlıyor. 

Elite la maison yüksek katında 3+1 ve 4+1 olmak üzere güneşi yeşili ve denizi yaşayabileceğiniz büyük m2 kullanıma sahip yüksek tavan hacimli lüks yaşam sunuyor. 

Elite la maison dublekslerinde prens adalarının ve marmara denizinin eşsiz manzarasına sahip terasınızdan gün batımını izlerken denizden nefes alacağınız 5 ayrı çatı katı yalı dairesiyle fark yaratıyor.

 



BENZERLER

Image
LAKE MEADOWS APARTMENTS
Architecture Building
Image
LAKE MEADOWS APARTMENTS
Architecture Building
Image
LAKE MEADOWS APARTMENTS
Architecture Building
Image
LAKE MEADOWS APARTMENTS
Architecture Building
Image
LAKE MEADOWS APARTMENTS
Architecture Building
Image
LAKE MEADOWS APARTMENTS
Architecture Building

Image

25 Yılı aşkın yıllık sektörel deneyimimizle, değer kazanan konut projeleri geliştiriyor ve satışa sunuyoruz.

  • Maltepe İstanbul, Türkiye
  • Bizi Arayın: (+9) 532 0000 000
  • info@elitelamaison.com

SON PROJELER

  • Image

    ELİTE YALI 4

    2024

TAGS

Küçükyalı Maltepe İstanbul Anadolu yakası

Son Proje Resimler

Image
Image
Image
Image
Image
Image
Image
Image
Image
© Elite La Maison
  • ANASAYFA
  • BİZ KİMİZ
  • FAALIYET ALANLARIMIZ
  • PROJELERİMİZ
  • İLETİŞİM